Greenhouse Restaurant lake Mývatn - Iceland

Architecture, Interior Design and Brand Experience

CONCEPT

The Vogafjós greenhouse restaurant is a plant-to-plate dining concept that integrates restaurant interior design with on-site food production to create an immersive hospitality experience. Designed as both a working greenhouse and a destination restaurant, the interior places guests directly within the growing environment, allowing fresh ingredients to move seamlessly from cultivation to table.

Beyond the dining experience, flexible interior spaces support community events, workshops, and wellness activities, positioning the project as a hybrid restaurant and cultural venue. Sustainability underpins the design approach, shaping a hospitality interior that combines agricultural functionality with experiential dining and education.

Materials and finishes moodboard for the Greenhouse Restaurant Iceland showing timber, glass, metal, concrete, and stone.
Exterior view of the Greenhouse Restaurant Iceland featuring timber buildings, glass greenhouses, and planted courtyards.
Axonometric overview of the Greenhouse Restaurant Iceland showing modular greenhouses, dining areas, and service spaces.
Covered walkway connecting glass greenhouses at the Greenhouse Restaurant Iceland with timber cladding and stone paving.

“To create an environment that allows visitors to feel connected to the produce, the greenhouses have been located at the heart of the development centrered between the two timber structures that make up the restaurant.”

Interior lounge area of the Greenhouse Restaurant Iceland featuring vertical growing racks and seating.
Main dining hall of the Greenhouse Restaurant Iceland with central planting, timber finishes, and open kitchen.

“Charred timber is mixed with natural poplar and blackened steel, whilst sandstone, brick and concrete have been used within the interior to give the space warm and natural tones.”

Interior dining space of the Greenhouse Restaurant Iceland with timber ceiling, communal tables, and greenhouse planting.
Project planning diagrams and axonometric layout for the Greenhouse Restaurant Iceland design.
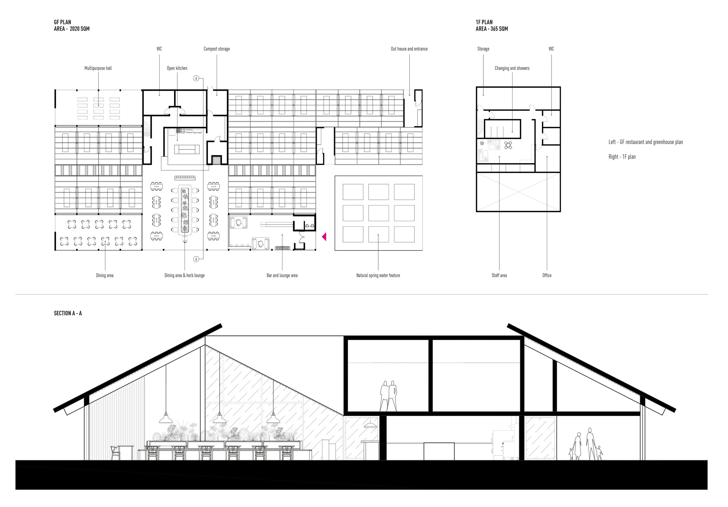
Architectural floor plan and section drawing for Greenhouse Restaurant Iceland showing restaurant layout, greenhouse areas, dining spaces and sectional roof profile.

PROJECT TYPE

Experiential Restaurant Design

SECTOR

Hospitality

CLIENT

Vogafjós Farm Resort

LOCATION

lake Mývatn, Iceland

FLOOR AREA

500 SQM

YEAR

2020

Do you have a project you’d like to discuss?

Previous
Previous

American Eagle Flagship Store Las Vegas- Retail Interior Design and Brand Experience

Next
Next

adidas DXB - Flagship Store Dubai - Retail Interior Design and Brand Experience